Mobil-Chalet LACET Nobel - VENDU

Loisirs et détente dans le magnifique Valais!

 

Réalisez votre rêve de posséder votre propre mobilhome ! Une vaste zone de détente et de loisirs vous attend, avec de nombreuses possibilités d'activités et de farniente! 

 

Pour plus d'informations, cliquez ici: Camping Simplonblick / Camping Santa Monica / activités de loisirs / Commune de Raron / les plus belles randonnées

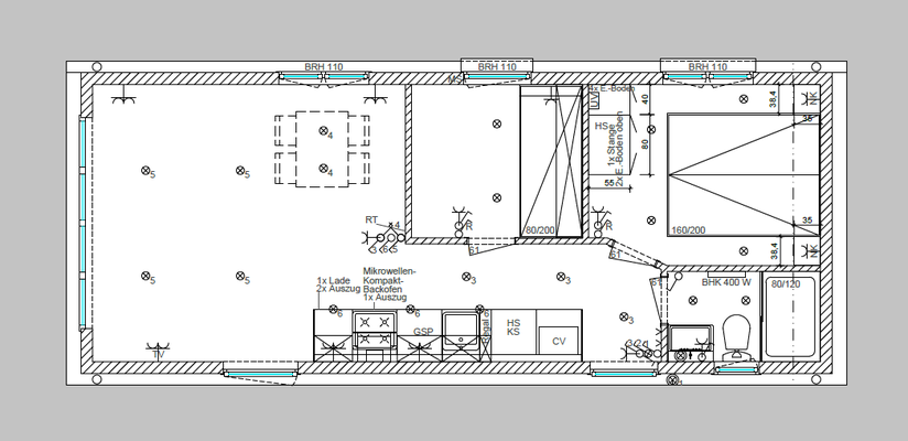
Nouveau mobilhome LACET Nobel (10.00 x 4.00m, 35.7m2 surface habitable) au camping Simplonblick à Raron

 

Partiellement meublé, espace de vie complètement vide avec 2 chambres à coucher, Rigid-Click-Vinyl avec effet bois Hatting Oak, toit en tuiles en acier, double pente gris graphite, bardages en PVC Viny Plus Shadow Jura Pine, epaisseur parois 100mm isolées avec des panneaux de laine minérale, epaisseur toit et sol 200mm isolées avec des panneaux de laine minérale, portes et fenêtres en anthracite à l’extérieur et en blanc à l’intérieur, porte d’entré et fenêtre de la salle de bain entièrement en verre dépoli, moustiquaires et volets roulants électriques en anthracite dans les deux chambres à coucher, gouttières et descentes en anthracite, plafond intérieur pointu blanc avec hauteur intérieure sur les côtés longs 2.185m et centre 2.60m, parois intérieurs dans toutes les pieces en Crystal White, parois intérieurs dans la salle de bain blanc, douche en Lentini Dark, portes intérieures en blanc lisse avec poignée de porte en optique V2A.

 

Frigo avec congélateur séparé, plaque de cuisson à gaz 4 feux et hotte aspirante (évacuation d’air), four compact à micro-ondes, lave-vaisselle, couleur du caisson, plan de travail et paroi arrière de la niche en chêne Montréal, salle de bain avec douche, lavabo et meuble bas avec 2 tiroirs, armoire haute 3 portes gris onyx dans la chambre à coucher des parents, les deux chambres avec 2x 80/200cm resp. 1x 80/200cm Mystery Box anthracite, chauffe-eau à gaz Vaillant, prises Suisses, prises pour lampe et courant extérieure.


Prix CHF 151'550.-

Incluse les frais pour transport avec autorisations spéciales et accompagnement police, préparation des la parcelle, coffre en gravier inclus, pose des dalles, gazon et système d'arrosage, pompe à chaleur avec 2 appareils intérieurs, raccordement aux eaux et égouts (version hiver), à l'électricité et gaz inclus coffre à gaz et contrôle de gaz, frais remise des clés.

 

Exclus d'autres aménagements extérieur, jupes et terrasse/veranda. Location de la parcelle CHF 2'889 hors charges. Pour nos offres de financement, nous vous conseillons bien volontiers.

 

Veuillez noter qu'il n'est pas possible d'établir sa résidence principale au camping Simplonblick.

 

Venez voir le Mobil-Chalet LACET Nobel directement sur la parcelle à Raron! A Cudrefin, dans notre exposition, nous vous montrerons volontiers d'autres Mobil-Chalets de ce fabricant. Alors n'hésitez pas à nous contacter!

Impressions Camping Simplonblick