Mobil-Chalet LACET Matterhorn

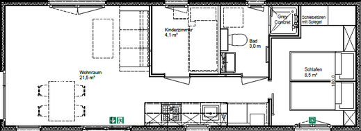
Nouveau Mobil-Chalet LACET Matterhorn (11.00 x 4.00m, 39.6m2 surface habitable) sur parcelle 15-2 au Camping des Cases à Forel-Lavaux (15.10 x 12.30m, 185m2)

 

Partiellement meublé, espace de vie complètement vide avec 2 chambres à coucher, Rigid-Click-Vinyl avec effet bois ou effet pierre, toit en tuiles en acier, double pente, bardages en PVC Viny Plus Quattro couleur au choix, epaisseur parois 100mm isolées avec des panneaux de laine minérale, epaisseur toit et sol 200mm isolées avec des panneaux de laine minérale, portes et fenêtres couleur au choix à l’extérieur et à l’intérieur, moustiquaires dans les chambres, salle de bain et cuisine (option), volets roulants électriques dans les chambres (option), gouttières et descentes, plafond intérieur pointu blanc avec hauteur intérieure sur les côtés longs 2.185m et centre 2.72m, parois intérieurs dans toutes les pieces en Crystal White, parois intérieurs dans la salle de bain blanc, douche couleur au choix, portes intérieures en blanc lisse avec poignée de porte en optique V2A.

 

5 concepts pour la cuisine et la salle de bain disponibles

Frigo avec congélateur séparé, plaque de cuisson à gaz 4 feux et hotte aspirante (évacuation d’air), four compact à micro-ondes, lave-vaisselle 60cm, lavabo carré en inox, salle de bain avec douche 90 x 90cm, lavabo et armoire de  toilette, meuble bas avec 2 tiroirs, robinetterie en chrome, sèche serviette électrique, armoire avec portes coulissantes et miroir dans la chambre des parents, lit 2x 80 x 200cm Mystery Box anthracite, chauffe-eau à gaz Vaillant, prises Suisses, prises pour lampe et prise extérieur


Prix dès CHF 149'200.-

Incluse les frais pour transport avec autorisations spéciales et accompagnement police à Forel-Lavaux, préparation de la parcelle, coffre en gravier inclus, raccordement aux eaux et égouts (version hiver), à l'électricité et gaz inclus coffre à gaz et contrôle de gaz, frais remise des clés.

 

Sans chauffage (four à pellet), aménagement extérieur, jupes et terrasse/veranda

 

Location de la parcelle CHF 5'604.75 hors charges

 

Pour nos offres de financement, nous vous conseillons bien volontiers

 

A Cudrefin, dans notre exposition, nous vous montrerons volontiers ce LACET Mobil-Chalets attrayante. Alors n'hésitez pas à nous contacter!

Parcelle & impressions du Camping des Cases