Mobil-Chalet LACET Matterhorn

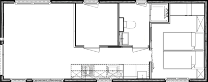
Nouveau Mobil-Chalet LACET Matterhorn (10.00 x 4.00m, 40m2) sur parcelle 28-6 au Camping des Cases à Forel-Lavaux (200m2)

 

Partiellement meublé avec 2 chambres à coucher avec

l’équipement suivant:

 

Rigid-Click-Vinyl avec effet bois ou effet pierre couleur au choix

Toit double pente, en tuiles en acier

Bardages en PVC vinyPlus Quattro couleur au choix

Parois isolées avec des panneaux de 100mm laine minérale

Toit et sol isolés avec des panneaux de 200mm laine minérale

Portes et fenêtres couleur au choix à l’extérieur et à l’intérieur

Moustiquaires dans les chambres, à la salle de bain et cuisine (Option)

Volets roulants électriques dans les chambres (Option)

Gouttières avec descentes

Plafond intérieur pointu en blanc stuck

Parois intérieures dans toutes les pieces en Crystal White

Portes intérieures en blanc lisse avec poignée de porte en optique V2A

 

5 concepts de couleur pour la cuisine et la salle de bain disponibles!

 

Cuisine et salle de bains modernes et parfaitement équipées

1 chambre à coucher entièrement meublé selon plan

Lit 2x 80 x 200cm Mystery Box anthracite

Tables de nuits et armoire haute

1 armoire avec portes coulissantes et miroir 


Prix dès CHF 138'300.- (selon les équipements spéciaux)

Inclus les frais pour transport avec autorisations spéciales et accompagnement transport à Forel-Lavaux, préparation de la parcelle, coffre en gravier inclus, raccordement aux eaux et égouts (version hiver), à l'électricité et gaz inclus coffre à gaz, contrôle de gaz et frais remise des clés.

 

Chauffage à pellets par et à la charge de l’acheteur, sans aménagement extérieur, jupes et terrasse/veranda. Location de la parcelle CHF 6'001.50 hors charges. Pour nos offres de financement, nous vous conseillons bien volontiers.

 

Veuillez noter qu'il n'est pas possible d'établir sa résidence principale au Camping des Cases.

 

A Cudrefin, dans notre exposition, nous vous montrerons volontiers ce LACET Matterhorn attrayante. Alors n'hésitez pas à nous contacter!

Parcelle & impressions du Camping des Cases