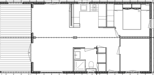
Oregon Doppel

Dieses Bild zeigt Zusatzausstattungen / cet image montre des équipements supplémentaires

12.00 x 5.65m

53.6m2 + 14m2 gedeckte Terrasse / terrasse couverte

 

Ab / dès CHF 189'500.-

 

Dekore und Farben können individuell ausgewählt werden / les décors et les couleurs peuvent être choisis individuellement