Matterhorn

Diese Bilder zeigen in manchen Fällen Zusatzausstattungen / ces images montrent dans certains cas des équipements supplémentaires

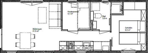
10.00 x 4.00m

40m2

2 Schlafzimmer / chambres

 

Ab / dès CHF 122'900.-


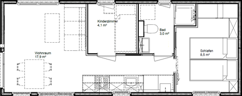
11.00 x 4.00m

44m2

2 Schlafzimmer / chambres

 

Ab / dès CHF 133'800.-



Sofort lieferbar / livrable de suite!

Ausstellungsmodell / modèle d'exposition

CHF 132'500.-

 

10.00 x 4.00m, 40m2

 

Dachfläche / surface du toit 10.40 x 4.30m

Aussenmasse / dimensions extérieures 10.00 x 4.00m

Wohnfläche / surface habitable 9.66 x 3.66m

2 Schlafzimmer / chambres

 

Aussenfassade / bardage extérieur vinyPlus Quattro Artisan Oak horizontal

Mit Winterisolation / avec isolation d'hiver