Mobil-Chalet LACET Nobel - VERKAUFT

Freizeit und Erholung im wunderschönen Wallis!

 

Erfüllen Sie sich Ihren Traum vom eigenen Mobilheim! Es erwartet Sie ein weiträumiges Erholungs- und Freizeitgebiet mit vielen Möglichkeiten für Aktivität und Nichtstun! 

 

Weitere Informationen finden Sie hier: Camping Simplonblick / Camping Santa Monica / Freizeitangebote / Gemeinde Raron / die schönsten Wanderungen

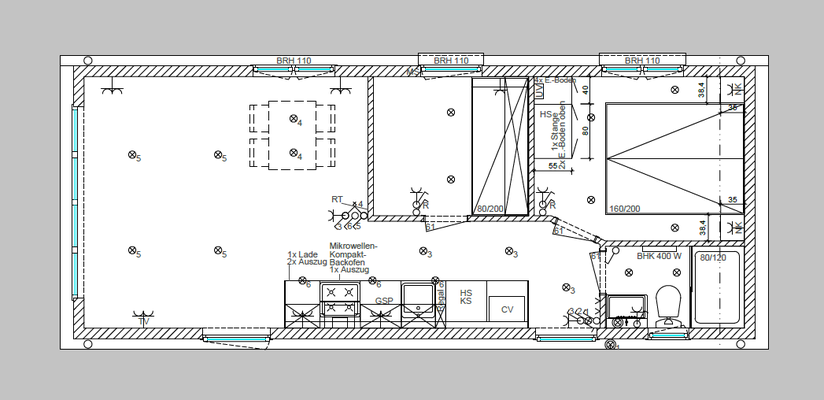
Neues Mobilhome Lacet Nobel (10.00 x 4.00m, 35.7m2 Wohnfläche) auf dem Camping Simplonblick in Raron

 

Teilmöbliert, Wohnbereich komplett leer mit 2 Schlafzimmern, Rigid-Click-Vinyl mit Holzoptik in Hatting Oak, Stahlziegeldach mit Längsfirst graphitgrau, Aussenbeplankung in PVC vinyPlus Shadow Jura Pine, Wände 100mm mit Mineralwolle-Dämmplatten isoliert, Dach und Boden 200mm mit Mineralwolle-Dämmplatten isoliert, Türen und Fenster in anthrazit aussen und weiss innen, Eingangstüre und Fenster Badezimmer komplett in Milchglas, Fliegengitter und Rolladen elektrisch anthrazit in beiden Schlafzimmern, Dachrinnen mit Abläufen anthrazit, Decke innen spitz weiss mit Innenhöhe an den Längsseiten 2.185m und Mitte 2.60m, Innenwände in allen Räumen ausser Badezimmer Crystal White, Innenwände Badezimmer weiss, Dusche in Lentini Dark, Innen-Türen in glatt weiss mit Türdrücker in V2A Optik.

 

Kühlschrank mit Gefrierfach, 4-flammiges Gaskochfeld und kopffreier Dampfabzug (Abluft), Mikrowellen-Kompakt-Backofen, Geschirrspühler, Korpusfarbe, Arbeitsplatte und Nischenrückwand in Eiche Montreal, Badezimmer mit Dusche, Lavabo und Spiegelschrank, Unterschrank mit 2 Schubladen, Hochschrank 3-türig onyxgrau im Elternschlafzimmer, beide Schlafzimmer mit 2x 80/200cm resp. 1x 80/200cm Mystery Box anthrazit, Gas-Durchlauferhitzer Vaillant, Schweizer Steckdosen, Aussenlampenanschluss und Aussensteckdose


Preis CHF 151'550.-

Inklusive Kosten für Transport mit Sonderbewilligung und Polizeibegleitung, Parzellenaufbereitung inklusive Erstellung Kieskofferung, Gartenplatten verlegen, Rasen sähen und Installation von Sprinkleranlage, Wärmepumpe mit 2 Innengeräten, Anschliessen an Frisch- und Abwasser (Winterversion), Strom und Gas sowie Gaskasten, Gaskontrolle und Ablieferpauschale.

 

Exklusive weitere Umgebungsarbeiten, Schürzen und Terrasse/Vorbau

 

Parzellenmiete CHF 2'889.- exklusive Nebenkosten

 

Für unsere Finanzierungsangebote beraten wir Sie gerne

 

Besichtigen Sie das Mobil-Chalet LACET Nobel direkt auf der Parzelle in Raron! In Cudrefin in unserer Ausstellung zeigen wir Ihnen gerne weitere Mobilheime dieses Herstellers. Also zögern Sie nicht, uns zu kontaktieren!

Impressionen Camping Simplonblick