Mobil-Chalet LACET Matterhorn - RESERVIERT

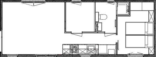
Neues Mobil-Chalet LACET Matterhorn (11.00 x 4.00m, 44m2) auf Parzelle 20-3 im Camping des Cases in Forel-Lavaux (20.00/17.50 x 9.90m, 185m2)

 

Teilmöbliert mit 2 Schlafzimmern mit folgender Ausstattung:

 

Rigid-Click-Vinyl mit Holzoptik oder Steinoptiok Farbe nach Wahl

Stahlziegel-Satteldach

Aussenfassade in PVC vinyPlus Quattro Farbe nach Wahl

Wände mit 100mm Mineralwolle-Dämmplatten isoliert

Dach und Boden mit 200mm Mineralwolle-Dämmplatten isoliert

Türen und Fenster Farbe nach Wahl aussen und innen

Fliegengitter in beiden Schlafzimmern, Bad und Küche (Option)

Rollladen elektrisch in beiden Schlafzimmern (Option)

Dachrinnen mit Abläufen

Decke innen spitz weiss stuck

Innenwände in allen Räumen ausser Badezimmer Crystal White 

Innen-Türen in glatt weiss mit Türdrücker in V2A-Optik

 

5 Farbkonzepte für Küche und Badezimmer erhältlich!

 

Modern und top ausgestattete Küche und Badezimmer

1  Komplett möbliertes Schlafzimmer gemäss Plan

Bett 2x 80 x 200cm Mystery Box anthrazit

Nachtkonsolen und Hängeschränke 

1 Schiebetürschrank mit Spiegel 


Preis ab CHF 149'200.- (je nach Sonderausstattungen)

Inklusive Kosten für Transport mit Sonderbewilligung und Transportbegleitung nach Forel-Lavaux, Parzellenaufbereitung inklusive Erstellung Kieskofferung, Anschliessen an Frisch- und Abwasser (Winterversion), Strom und Gas sowie Gaskasten, Gaskontrolle und Ablieferpauschale.

 

Pellet-Heizung durch und zu Lasten Käufer, exklusive Umgebungsarbeiten, Schürzen und Terrasse/Veranda. Parzellenmiete CHF 5'604.75 exklusive Nebenkosten. Für unsere Finanzierungsangebote beraten wir Sie gerne.

 

In Cudrefin in unserer Ausstellung zeigen wir Ihnen gerne das attraktive LACET Matterhorn. Also zögern Sie nicht, uns zu kontaktieren!

Parzelle & Impressionen Camping des Cases